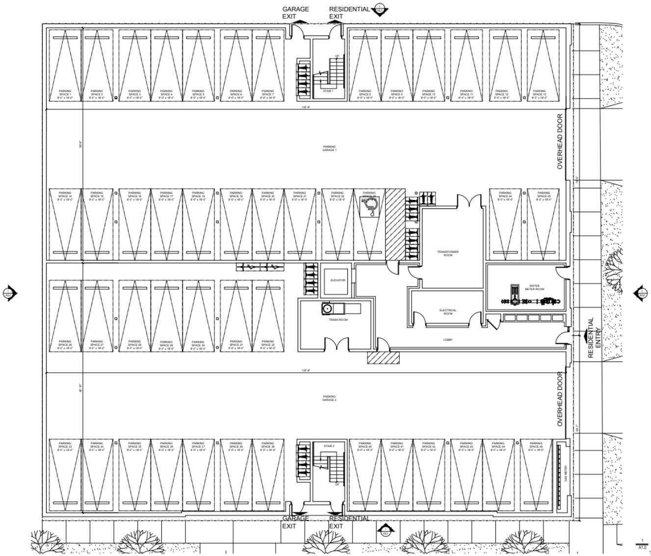
Future Projects
7620 Madison Street, River Forest IL
Developed and Managed by Five Thirty One Partners
Located in the historic village of River Forest, this five-story mixed-use development will feature 72 residential units ranging from 1 to 4 bedrooms (600-1,800 square feet) and 3,256 square feet of ground-floor retail space. Each residence will showcase higher-end finishes, premium kitchens, cabinetry, and appliances that reflect Five Thirty One Partners’ commitment to quality and craftsmanship.
Designed with community at its core, the building will offer extensive amenities including a rooftop deck, dog run, rooftop fitness center, bike storage, and indoor parking. Ideally positioned in one of Chicago’s most desirable western suburbs, this project blends modern luxury living with River Forest’s small town character.
117 Virginia St, Elmhurst IL
Developed and Managed by Five Thirty One Partners
Elmhurst is a vibrant, family-friendly suburb located just 16 miles west of downtown Chicago. Known for its charming tree lined streets, top rated schools, and a strong sense of community, Elmhurst blends small town warmth with big city convenience. Its lively downtown features boutique shopping, diverse restaurants, and a modern Metra station for easy city access.
Five Thirty One Partners has plans underway for a potential five-story residential building in Elmhurst, featuring approximately 40 units. The design envisions a modern, thoughtfully scaled development that complements the surrounding neighborhood while providing high-quality housing options close to Elmhurst’s vibrant downtown and transit amenities. Rooftop exposure offers our residents a place to gather, build community, and enjoy city views.
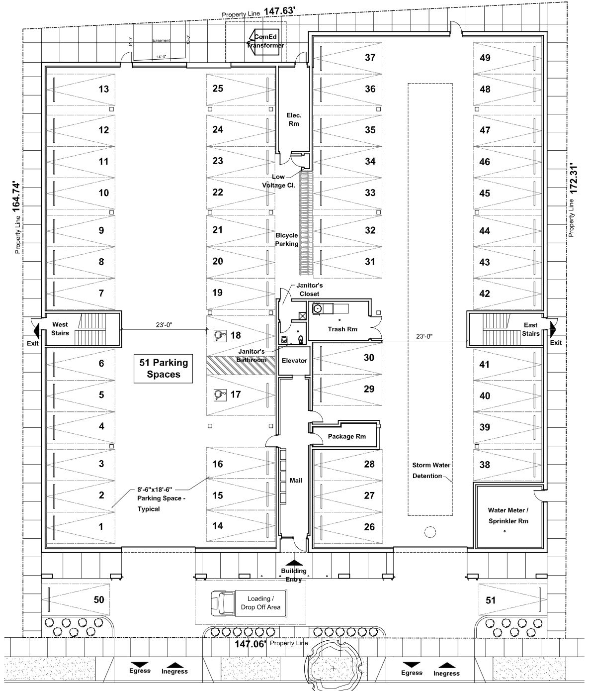
1604 N Natoma, Chicago IL
Developed and Managed by Five Thirty One Partners
This development will feature a residential buildings totaling 59 units. This property will occupy an entire city block directly east of our recently completed 42-unit project at 6700 North Avenue.
Designed to complement 6700 North Avenue, the buildings will offer spacious two-bedroom units averaging 1,200–1,300 square feet. Each residence will feature the same high-end finishes and contemporary design that define Five Thirty One Partners’ portfolio, while providing a slightly smaller and more accessible option for first-time renters and empty nesters seeking to remain in the neighborhood.
This development represents the next step in our ongoing commitment to enhancing the North Avenue corridor with thoughtfully designed, high-quality residential communities.

